Porzione di quadrifamiliare in vendita

Sonnino, Via del Cesenese - Capocroce
€ 217.000
210 Mq 210 Mq
4 bagni 4 bagni

Porzione di quadrifamiliare in vendita

Sonnino, Via del Cesenese - Capocroce

Descrizione annuncio

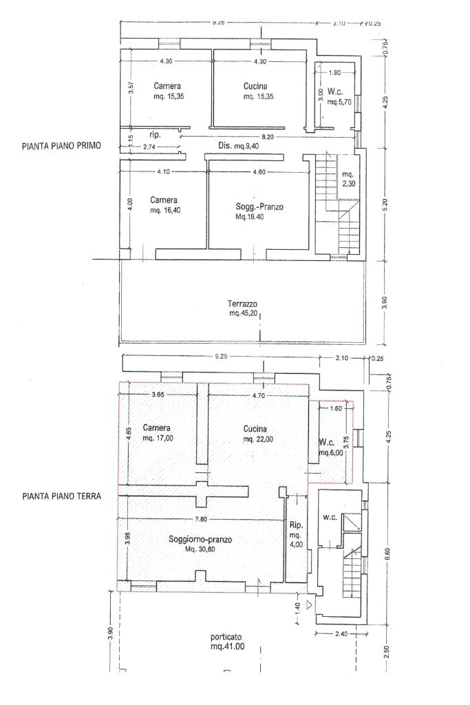
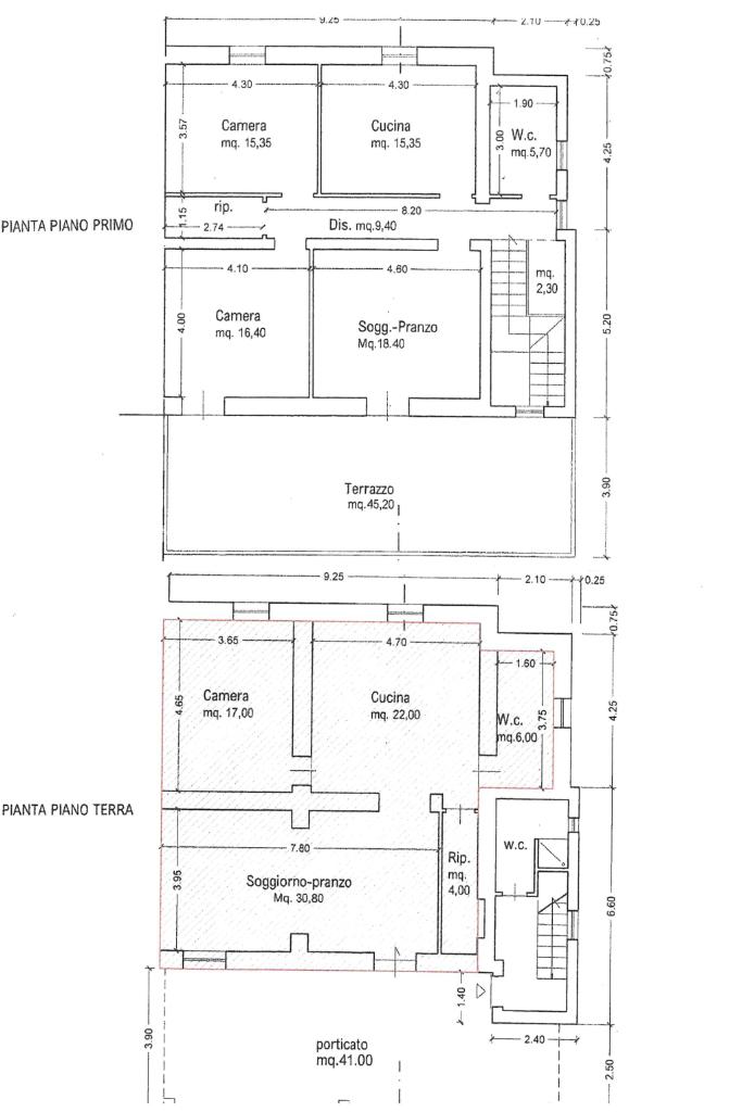
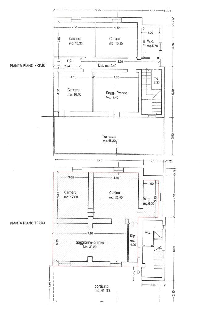
SONNINO - LOC. CAPOCROCE: Porzione idi Villa con Ingresso Indipendente, Garage e Terreno

In posizione tranquilla e riservata, proponiamo in esclusiva la vendita di una porzione di villa composta da due unità abitative con ingressi indipendenti, ideale per chi desidera una soluzione bifamiliare o una casa unica su due livelli, capace di offrire ampi spazi e indipendenza per chi cerca spazio, privacy e contatto con la natura.

Al piano terra si sviluppa un appartamento di circa 70 mq che accoglie i suoi ospiti in un soggiorno luminoso e versatile, facilmente adattabile anche come seconda camera o studio, a seconda delle esigenze. Proseguendo, si accede alla cucina abitabile, cuore pulsante della casa, ampia e funzionale, perfetta per la vita quotidiana e per i momenti conviviali.

Proseguendo dalla cucina, a sinistra si trova la camera matrimoniale, spaziosa e accogliente, mentre sulla destra si incontrano il bagno, comodo e ben organizzato, e un pratico ripostiglio che completa il piano.

Il primo piano ospita invece un appartamento di circa 100 mq che si apre nella cucina abitabile di generose dimensioni, ambiente ideale per la vita quotidiana e per accogliere momenti conviviali.

Il salotto, arioso e ben illuminato, si affaccia direttamente su un ampio terrazzo di circa 50 mq, perfetto per godersi il relax all’aperto, organizzare pranzi estivi o semplicemente ammirare il paesaggio circostante.

La zona notte ospita due camere da letto matrimoniali, entrambe di ampia metratura, in grado di offrire comfort e versatilità d’arredo. Un pratico ripostiglio, perfettamente integrato nel corridoio che collega i vari ambienti, aggiunge ulteriore funzionalità alla casa. A completare il piano, il bagno principale, comodo e ben posizionato rispetto agli spazi della casa.

Un ulteriore vantaggio è rappresentato dal secondo bagno, situato al piano terra, sotto la scala che conduce all’ingresso dell’abitazione e dotato di finestra.

La proprietà si presenta in buono stato conservativo, pronta per essere abitata, e dotata di impianto di climatizzazione.

All’esterno troviamo un garage di circa 30 mq, finestrato e libero su quattro lati, un locale accessorio con bagno e cucinino e un terreno impreziosito da 25 piante di ulivo, ideale per chi ama il verde e la vita all’aperto.

La soluzione si inserisce in un contesto residenziale e silenzioso a pochi passi dal rinomato Ristorante “La Tombola”, perfetto per famiglie o per chi desidera vivere lontano dal caos cittadino, pur restando ben collegato ai principali servizi.

Mostra tutto

Nelle vicinanze

Trasporto pubblico Trasporto pubblico
Capocroce
Capocroce
800 m
stazione di Priverno-Fossanova
stazione di Priverno-Fossanova
2,0 Km
Trasporto pubblico
2,8 Km
Scuole Scuole
Istituto Comprensivo Leonardo Da Vinci - Plesso Madonnelle
960 m
Istituto Comprensivo Leonardo Da Vinci - Plesso Sonnino Scalo
3,0 Km
Farmacia Farmacia
Farmacia
2,9 Km
Supermercati Supermercati
Mini Market De Gregoris
790 m
Eurospin
2,4 Km
Negozi Negozi
SNOB Abbigliamento
890 m
Passerotto
2,8 Km
Negozi
2,9 Km
Bar Bar
La Piccola Hollywood
810 m
L'angolo del caffè
2,4 Km
Bar
2,8 Km
Ristoranti Ristoranti
La locanda degli amici
770 m
Gran Caffè L'Ulivo
1,5 Km
Il Sogno
2,1 Km
Ristoranti
2,5 Km
Il Carrubo
2,8 Km
Mostra tutto

Caratteristiche

Rif.:
61120987
Piano:
1 di 2 (Piano su più livelli)
Box:
1
Posti auto:
5
Terrazzi:
1
Camere da letto:
4
Mostra tutto
Prezzo Prezzo
€ 217.000
Rata mutuo Rata mutuo
€ 1.023 / mese
Spese annue Spese annue
€ 0
Proponi il tuo prezzoProponi il tuo prezzo

Classe Energetica

G
G
G
G
G
G
G
G
G
EP invernale del fabbricato:
EP estiva del fabbricato:
Anno di costruzione:
1980
Riscaldamento:
Autonomo
Tipo impianto:
Ad aria
Tipo alimentazione:
Altro

Ti interessa visionare l'immobile?

Fissa un appuntamento  Fissa un appuntamento

Richiedi informazioni

Clicca su Leggi per aprire l'informativa
* Questi campi sono obbligatori

Calcola il tuo mutuo

Semplice e senza impegno
Anticipo

( % )
Mutuo

( % )

pochi semplici passi

inserisci i tuoi dati
Questionario completato
Grazie per aver richiesto un appuntamento senza impegno con un nostro Consulente del Credito e Assicurativo.

Hai inserito correttamente tutti i dati necessari e a breve riceverai una e-mail con un link da convalidare per inviare i tuoi dati.
Affiliato
Terracina Mediazioni Srl
Via Pontina km 105.500, snc 04019 Terracina (LT)

Il nostro staff


  • Paulo Francesco Bozzetto
    Collaboratore

  • Eleonora Amici
    Coordinatrice

  • Beatrice Nasso
    Coordinatrice

  • Andrea Nasso
    Collaboratore

  • Raffaele Nasso
    Affiliato
Via Pontina km 105.500, snc 04019 Terracina (LT)
Zona: Terracina
Mostra su mappa
Orari: Dal Lunedì al Sabato: 09.30-13.30 15.30-19.30 / Domenica CHIUSO
Affiliato
Terracina Mediazioni Srl
Via Pontina km 105.500, snc 04019 Terracina (LT)

2025 Tecnocasa Franchising S.p.A. - P. IVA 08365160152 - Via Monte Bianco 60/A 20089 Rozzano (MI). Ogni agenzia ha un proprio titolare ed è autonoma. Privacy policy | Policy utilizzo | Cookie policy