5 locali in vendita

Terracina, Via Lungolinea Pio VI°
€ 399.000
5 locali 5 locali
150 Mq 150 Mq
2 bagni 2 bagni

5 locali in vendita

Terracina, Via Lungolinea Pio VI°

Descrizione annuncio

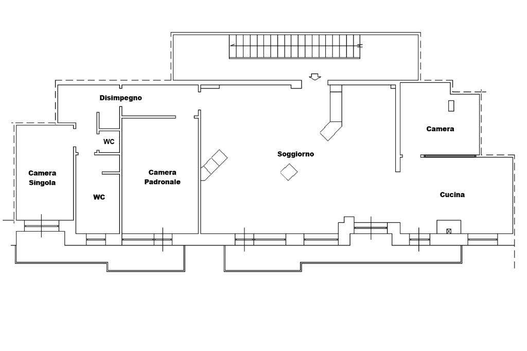
Appartamento di prestigio nel cuore di Terracina

Nel pieno centro di Terracina (LT), proponiamo in esclusiva la vendita di un raffinato appartamento di 145 mq, situato in Via Lungolinea Pio VI, al terzo piano di un condominio signorile servito da ascensore e arricchito da un garage privato di 41 mq.

L’abitazione, in ottimo stato conservativo e rifinita con materiali di pregio, offre ambienti ampi e luminosi. L’ingresso conduce a un elegante soggiorno con vista sul Monte Giove, cuore della casa, affiancato da una cucina funzionale. La zona notte comprende una camera padronale, due camere singole, un bagno principale completo di tutti i servizi e un bagno di servizio.

La proprietà vanta impianti elettrici, idraulici e del gas completamente rinnovati, oltre a infissi di ultima generazione con taglio termico e zanzariere, per garantire efficienza energetica e massimo comfort.

A completare l’offerta, un cortile privato conduce al garage di 41 mq con altezza di 2 metri, una comodità rara e preziosa nel cuore della città.

Questa residenza rappresenta una soluzione ideale per chi desidera vivere Terracina con stile, praticità e charme, a pochi passi da tutti i servizi e dalle bellezze del comune di Terracina.

Mostra tutto

Nelle vicinanze

Trasporto pubblico Trasporto pubblico
Terracina
Terracina
1,5 Km
Trasporto pubblico
270 m
Via Roma Bus Stop
Via Roma Bus Stop
420 m
Trasporto pubblico
620 m
Scuole Scuole
Scuole
210 m
Istituto San Giuseppe - Suore Orsoline
340 m
Scuola Primaria "Francesco Lama"
470 m
Università degli Studi di Cassino - Facoltà di Economia
720 m
Scuola Secondaria di I grado "Don Lorenzo Milani"
910 m
Farmacia Farmacia
Farmazia Giovinazzi
110 m
Farmacia Santa Rita
520 m
Farmacia Zizzi
1,1 Km
Parafarmacia Conad
2,5 Km
Ospedali Ospedali
Villa Azzurra - Hospice Poliambulatorio
410 m
Ospedale Alfredo Fiorini
2,0 Km
Pronto Soccorso Ospedale "Alfredo Fiorini"
2,1 Km
Supermercati Supermercati
Primavera
70 m
Conad
1,2 Km
Supermercati
1,3 Km
Lidl
1,4 Km
Todis
1,4 Km
Negozi Negozi
Antico Forno Terracinese
50 m
Alimentari Carmine e Mirella
160 m
Sbaraglia
170 m
White 120
180 m
Intima
200 m
Bar Bar
La Fiora
40 m
Lucas
90 m
Colorado Caffè
130 m
Bar
180 m
Caffè del viale
180 m
Ristoranti Ristoranti
Ristoranti
190 m
Il mare in tavola
220 m
La Focaccia
220 m
Pizzaria Punto Giallo
250 m
Hostaria Del Vicoletto
280 m
Mostra tutto

Caratteristiche

Rif.:
61110273
Piano:
3 di 4 con ascensore (Piano alto)
Box:
1
Posti auto:
1
Balconi:
2
Camere da letto:
3
Mostra tutto
Prezzo Prezzo
€ 399.000
Rata mutuo Rata mutuo
€ 1.895 / mese
Spese annue Spese annue
€ 600
Proponi il tuo prezzoProponi il tuo prezzo

Classe Energetica

E
E
E
E
E
E
E
E
E
EP globale non rinnovabile:
100.00 kW h/m² anno
EP globale rinnovabile:
100.00 kW h/m² anno
EP invernale del fabbricato:
EP estiva del fabbricato:
Anno di costruzione:
1980
Riscaldamento:
Autonomo
Tipo impianto:
A radiatori
Tipo alimentazione:
Metano

Ti interessa visionare l'immobile?

Fissa un appuntamento  Fissa un appuntamento

Richiedi informazioni

Clicca su Leggi per aprire l'informativa
* Questi campi sono obbligatori

Calcola il tuo mutuo

Semplice e senza impegno
Anticipo

( % )
Mutuo

( % )

pochi semplici passi

inserisci i tuoi dati
Questionario completato
Grazie per aver richiesto un appuntamento senza impegno con un nostro Consulente del Credito e Assicurativo.

Hai inserito correttamente tutti i dati necessari e a breve riceverai una e-mail con un link da convalidare per inviare i tuoi dati.
Affiliato
Terracina Mediazioni Srl
Via Pontina km 105.500, snc 04019 Terracina (LT)

Il nostro staff


  • Paulo Francesco Bozzetto
    Collaboratore

  • Mario Di Fabio
    Collaboratore

  • Eleonora Amici
    Coordinatrice

  • Andrea Nasso
    Collaboratore

  • Raffaele Nasso
    Affiliato
Via Pontina km 105.500, snc 04019 Terracina (LT)
Zona: Terracina
Mostra su mappa
Orari: Dal Lunedì al Sabato: 09.30-13.30 15.30-19.30 / Domenica CHIUSO
Affiliato
Terracina Mediazioni Srl
Via Pontina km 105.500, snc 04019 Terracina (LT)

2026 Tecnocasa Franchising S.p.A. - P. IVA 08365160152 - Via Monte Bianco 60/A 20089 Rozzano (MI). Ogni agenzia ha un proprio titolare ed è autonoma. Privacy policy | Policy utilizzo | Cookie policy