Trilocale in vendita

Terracina, Piazza Cancelli
€ 148.000
3 locali 3 locali
70 Mq 70 Mq
1 bagno 1 bagno

Trilocale in vendita

Terracina, Piazza Cancelli

Descrizione annuncio

Ci sono case che non si limitano a offrire spazio.
Offrono atmosfera, storia, identità.

Il luogo dove iniziano i nuovi capitoli:

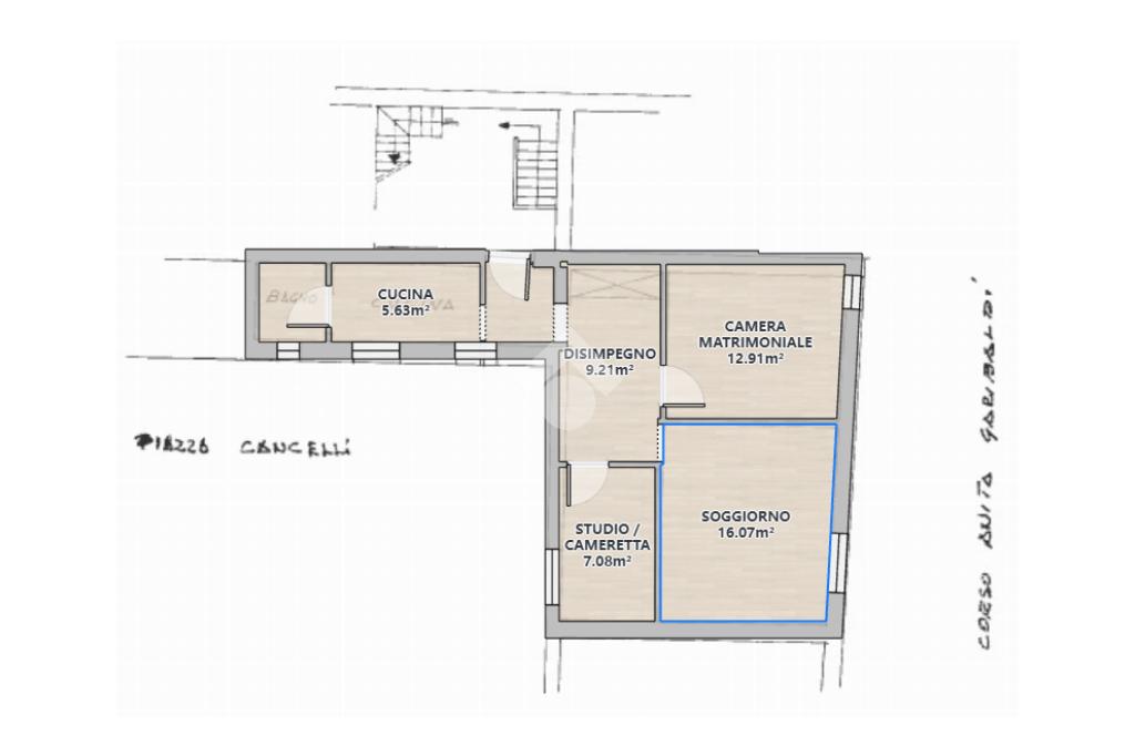
Tra i vicoli medievali che caratterizzano il cuore antico della città, a soli 15 minuti a piedi dal mare in Piazza Cancelli, proponiamo in esclusiva un affascinante appartamento di 70 mq esposto a sud, nord e ovest che regala luce naturale durante tutto l’arco della giornata.

I soffitti alti offrono la possibilità di realizzare un soppalco fino a ulteriori 50 mq, gli infissi, nuovi in alluminio con doppio vetro e le persiane anch’esse nuove, garantiscono comfort, isolamento e tranquillità in tutte le stanze.

I pianerottoli, ampi e accoglienti, restituiscono quel senso di comunità che oggi è sempre più raro, favorendo i rapporti con i nuovi vicini di casa in modo autentico.

Sotto casa si snoda il tessuto più genuino del centro antico, tra ristoranti tipici, piccole botteghe, minimarket e gelaterie che rendono la quotidianità comoda e piacevole mentre a soli due minuti a piedi troviamo il suggestivo Teatro Romano di Terracina, uno dei luoghi più affascinanti del percorso archeologico urbano, scenario di eventi e rappresentazioni perché la cultura è fondamentale.

Un luogo dove custodire ricordi preziosi e dove, nelle serate di festa, l’alto della città offre affacci suggestivi su un mare sovrastato da cieli accesi di luce e colori.

Tutti, prima o poi, sognano una casa di proprietà.
E quando la si possiede già, si sogna qualcosa di più, oppure si sogna un dono importante per un figlio che sta costruendo la propria famiglia.

Mostra tutto

Nelle vicinanze

Trasporto pubblico Trasporto pubblico
Terracina
Terracina
890 m
Via Roma Bus Stop
Via Roma Bus Stop
220 m
Trasporto pubblico
740 m
Trasporto pubblico
1,2 Km
Scuole Scuole
Scuola Primaria "Francesco Lama"
530 m
Istituto Tecnico Commerciale Arturo Bianchini
570 m
Scuole
630 m
Scuola Secondaria di I grado "Don Lorenzo Milani"
770 m
Università degli Studi di Cassino - Facoltà di Economia
870 m
Farmacia Farmacia
Farmacia Santa Rita
230 m
Farmacia Zizzi
470 m
Farmazia Giovinazzi
710 m
Parafarmacia Conad
2,2 Km
Ospedali Ospedali
Villa Azzurra - Hospice Poliambulatorio
980 m
Ospedale Alfredo Fiorini
1,4 Km
Pronto Soccorso Ospedale "Alfredo Fiorini"
1,5 Km
Supermercati Supermercati
Conad
570 m
Primavera
660 m
Supermercati
840 m
Todis
870 m
Conad Calcatore
1,2 Km
Negozi Negozi
Casa del Materasso
290 m
Dorabella
390 m
Like Store
400 m
Ego Milano
400 m
Sandro Ferrone
410 m
Bar Bar
Cantina Porta Nova
100 m
Ready Steady Go!
190 m
Caffè del viale
470 m
Bar
490 m
Colorado Caffè
560 m
Ristoranti Ristoranti
Rosso Vino
20 m
Green
40 m
Muracce
70 m
Enoteca Saint Patrick
80 m
Ai Tritoni
100 m
Mostra tutto

Caratteristiche

Rif.:
61177682
Piano:
3 di 3 (Piano alto)
Camere da letto:
2
Arredamento:
Parziale
Condizionamento:
Autonomo
Ascensore:
No
Mostra tutto
Prezzo Prezzo
€ 148.000
Rata mutuo Rata mutuo
€ 703 / mese
Spese annue Spese annue
€ 0
Proponi il tuo prezzoProponi il tuo prezzo

Classe Energetica

G
G
G
G
G
G
G
G
G
EP invernale del fabbricato:
EP estiva del fabbricato:
Anno di costruzione:
1900
Riscaldamento:
Autonomo
Tipo impianto:
Ad aria
Tipo alimentazione:
Aria

Ti interessa visionare l'immobile?

Fissa un appuntamento  Fissa un appuntamento

Richiedi informazioni

Clicca su Leggi per aprire l'informativa
* Questi campi sono obbligatori

Calcola il tuo mutuo

Semplice e senza impegno
Anticipo

( % )
Mutuo

( % )

pochi semplici passi

inserisci i tuoi dati
Questionario completato
Grazie per aver richiesto un appuntamento senza impegno con un nostro Consulente del Credito e Assicurativo.

Hai inserito correttamente tutti i dati necessari e a breve riceverai una e-mail con un link da convalidare per inviare i tuoi dati.
Affiliato
Terracina Mediazioni Srl
Via Pontina km 105.500, snc 04019 Terracina (LT)

Il nostro staff


  • Paulo Francesco Bozzetto
    Collaboratore

  • Mario Di Fabio
    Collaboratore

  • Eleonora Amici
    Coordinatrice

  • Andrea Nasso
    Collaboratore

  • Raffaele Nasso
    Affiliato
Via Pontina km 105.500, snc 04019 Terracina (LT)
Zona: Terracina
Mostra su mappa
Orari: Dal Lunedì al Sabato: 09.30-13.30 15.30-19.30 / Domenica CHIUSO
Affiliato
Terracina Mediazioni Srl
Via Pontina km 105.500, snc 04019 Terracina (LT)

2026 Tecnocasa Franchising S.p.A. - P. IVA 08365160152 - Via Monte Bianco 60/A 20089 Rozzano (MI). Ogni agenzia ha un proprio titolare ed è autonoma. Privacy policy | Policy utilizzo | Cookie policy