Villa singola in vendita

Terracina, Via Ss7 - Barchi
€ 650.000
9 locali 9 locali
220 Mq 220 Mq
3 bagni 3 bagni

Villa singola in vendita

Terracina, Via Ss7 - Barchi

Descrizione annuncio

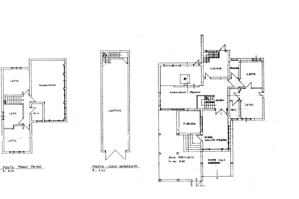
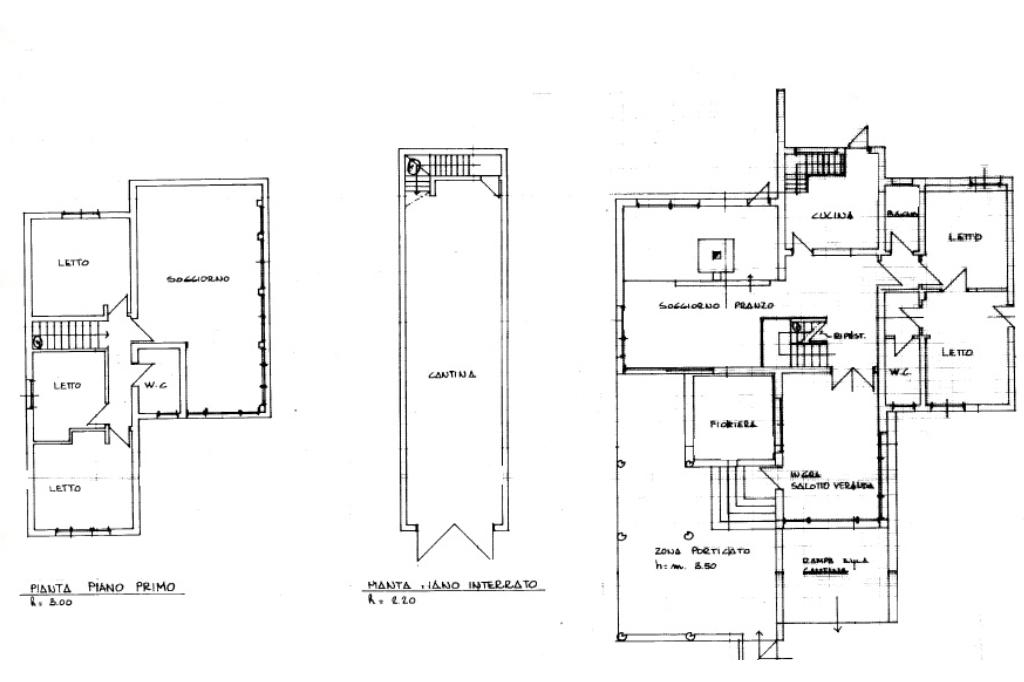
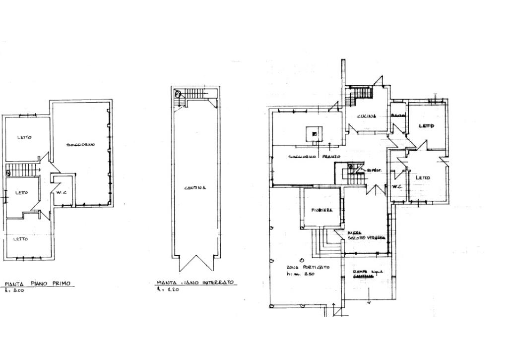
Villa indipendente con vista lago – Via Appia, Terracina (LT) In una posizione incantevole tra Terracina e Monte San Biagio, Località Barchi affacciata sul suggestivo Lago di Fondi, proponiamo in esclusiva la vendita di questa villa singola di charme, perfetta per chi cerca ampi spazi e un panorama offre una superficie commerciale di circa 217 mq e 200 mq di superficie calpestabile residenziale, distribuita su più livelli con ambienti luminosi e funzionali:Piano rialzato: accogliente veranda panoramica, ampia sala da pranzo, comodo soggiorno, una camera e due bagni.Primo piano: tre camere da letto, uno studio e un ulteriore bagno; la camera padronale regala una splendida vista sul lago, creando un ambiente esclusivo e rilassante.Piano seminterrato: garage di 40 mq, pratico e spazioso.All’esterno, la proprietà si distingue per un ampio portico attrezzato con barbecue, collegato sia alla sala da pranzo che alla veranda con vista lago: un perfetto spazio conviviale per pranzi e cene all’aperto.
È presente anche un portico copriauto con accesso diretto al terreno circostante, di 4.000 mq, ospita 25 alberi di ulivo e diverse varietà di alberi da frutto. Sul lato lago si trova una piazzola in cemento per l’alloggiamento di barche e canoe, un pontile privato con belvedere di circa 9 mq e uno scivolo per l’introduzione delle imbarcazioni direttamente in villa è autosufficiente e dotata di comfort moderni: pozzo per l’acqua, fossa Imhoff con pozzetti, bombole esterne per il gas, climatizzatori, riscaldamento tradizionale e caldaia a pellet per un’efficiente gestione termica in ogni stagione. Questa dimora rappresenta una soluzione esclusiva per chi desidera un’ampia residenza familiare o una casa di rappresentanza, distinguendosi per il fascino del paesaggio e l’intima connessione con la natura.
Mostra tutto

Nelle vicinanze

Trasporto pubblico Trasporto pubblico
Trasporto pubblico
1,7 Km
Scuole Scuole
Scuole
2,7 Km
Supermercati Supermercati
Supermercati
2,3 Km
Negozi Negozi
Il Gusto della Valle
1,8 Km
Negozi
2,6 Km
Bar Bar
Brio Market
2,6 Km
Ristoranti Ristoranti
Il Giardino degli Ulivi
1,4 Km
Ristoranti
1,4 Km
Ristorante Pizzeria Il Pomodoro
2,6 Km
Mostra tutto

Caratteristiche

Rif.:
61117117
Piano:
2 di 3 (Piano rialzato)
Box:
1
Posti auto:
3
Camere da letto:
4
Arredamento:
Parziale
Mostra tutto
Prezzo Prezzo
€ 650.000
Rata mutuo Rata mutuo
€ 3.088 / mese
Spese annue Spese annue
€ 0
Proponi il tuo prezzoProponi il tuo prezzo

Classe Energetica

A1
A1
A1
A1
A1
A1
A1
A1
A1
EP globale non rinnovabile:
56.00 kW h/m² anno
EP globale rinnovabile:
56.00 kW h/m² anno
EP invernale del fabbricato:
EP estiva del fabbricato:
Anno di costruzione:
1970
Riscaldamento:
Autonomo
Tipo impianto:
A radiatori
Tipo alimentazione:
Altro

Ti interessa visionare l'immobile?

Fissa un appuntamento  Fissa un appuntamento

Richiedi informazioni

Clicca su Leggi per aprire l'informativa
* Questi campi sono obbligatori

Calcola il tuo mutuo

Semplice e senza impegno
Anticipo

( % )
Mutuo

( % )

pochi semplici passi

inserisci i tuoi dati
Questionario completato
Grazie per aver richiesto un appuntamento senza impegno con un nostro Consulente del Credito e Assicurativo.

Hai inserito correttamente tutti i dati necessari e a breve riceverai una e-mail con un link da convalidare per inviare i tuoi dati.
Affiliato
Terracina Mediazioni Srl
Via Pontina km 105.500, snc 04019 Terracina (LT)

Il nostro staff


  • Paulo Francesco Bozzetto
    Collaboratore

  • Mario Di Fabio
    Collaboratore

  • Eleonora Amici
    Coordinatrice

  • Andrea Nasso
    Collaboratore

  • Raffaele Nasso
    Affiliato
Via Pontina km 105.500, snc 04019 Terracina (LT)
Zona: Terracina
Mostra su mappa
Orari: Dal Lunedì al Sabato: 09.30-13.30 15.30-19.30 / Domenica CHIUSO
Affiliato
Terracina Mediazioni Srl
Via Pontina km 105.500, snc 04019 Terracina (LT)

2026 Tecnocasa Franchising S.p.A. - P. IVA 08365160152 - Via Monte Bianco 60/A 20089 Rozzano (MI). Ogni agenzia ha un proprio titolare ed è autonoma. Privacy policy | Policy utilizzo | Cookie policy